Willkommen
Projekte
Kontakt
Wohnhaus mit 3 Wohneinheiten
in Aachen
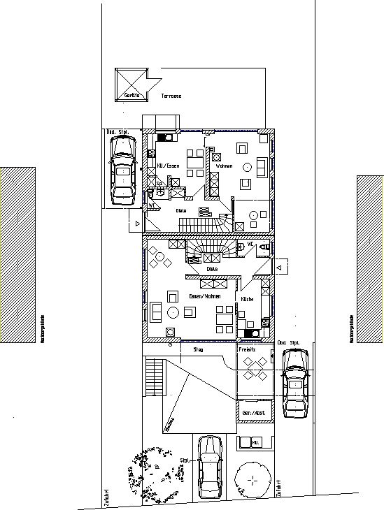
Neubau eines Wohnhauses mit drei Wohneinheiten in Aachen.
Willkommen
Projekte
Kontakt
Wohnhaus mit 3 Wohneinheiten
in Aachen
Neubau eines Wohnhauses mit drei Wohneinheiten in Aachen.
Gartenansicht
Str.-Ansicht
Grundriss
Seitenansicht
Seitenansicht