Willkommen
Projekte
Kontakt
Kita Gerolstein
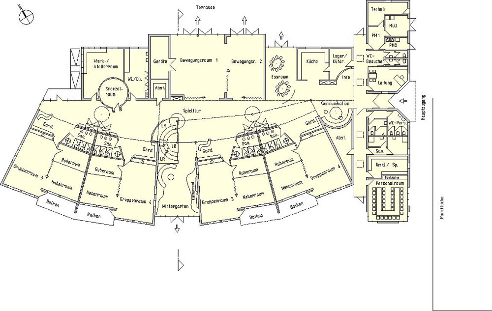
Entwurf für einen 8-gruppigen Kindergarten in Gerolstein
Willkommen
Projekte
Kontakt
Kita Gerolstein
Entwurf für einen 8-gruppigen Kindergarten in Gerolstein
Südwest-Ansicht
Systemschnitt
Grundriss
Nordwest-Ansicht
Südost-Ansicht
Nordost-Ansicht