Willkommen
Projekte
Kontakt
Passiv-Haus in Auel
Neubau eines Passiv-Wohnhauses in Auel
Willkommen
Projekte
Kontakt
Passiv-Haus in Auel
Neubau eines Passiv-Wohnhauses in Auel
Gartenansicht
Straßenansicht
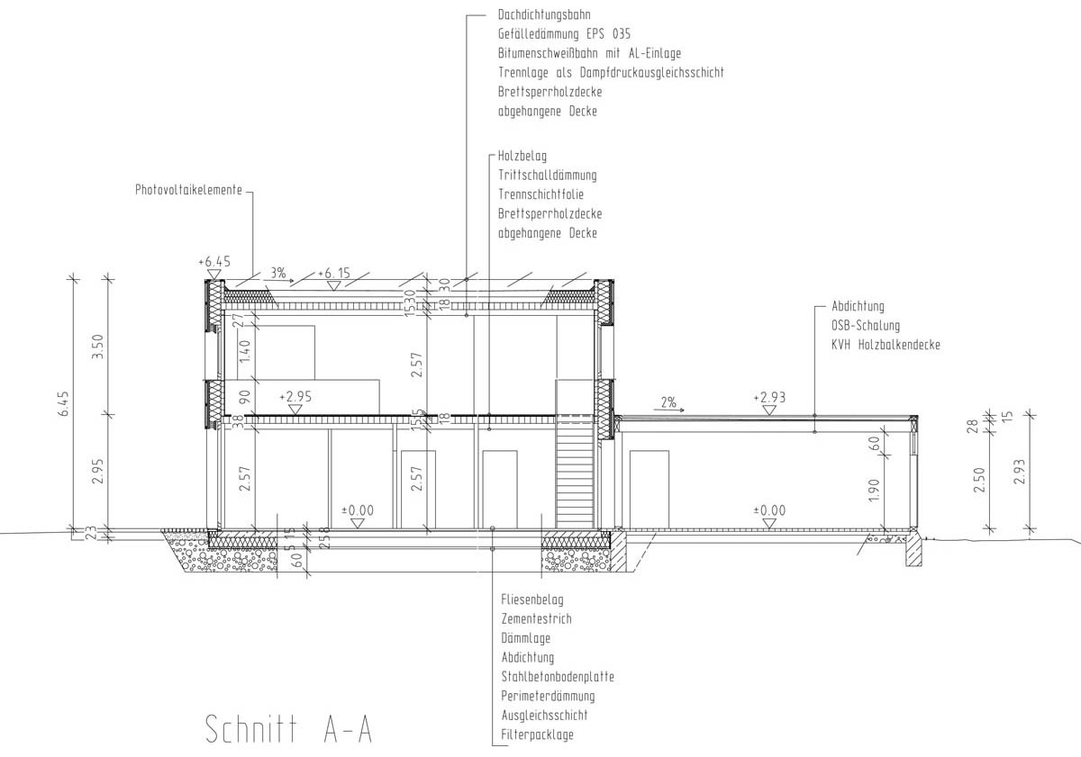
Schnittzeichnung
West-Ansicht